Prodej skladu 1601 m2

Zpět
Humpolecká, Havlíčkův Brod
Přidat do oblíbených Nahlásit chybný nebo jinak obtěžující inzerát administrátorovi.

Přehled

Datum vložení
19. 9. 2022
Datum aktualizace
31. 1. 2026
Počet zobrazení
1765
Cena
19 990 000 Kč
Typ nemovitosti:
Komerční
Druh:
Prodej
ID:
24237
Adresa:
Humpolecká
Havlíčkův Brod
Praha
Typ:
Sklady
Stav:
Dobrý
Stavba:
Cihlová
Plocha:
1601 m2
Vytápění domu:
Bez vytápění
Energetická náročnost:
G nebo neuvedeno
Hodnocení:
Facebook Twitter Google LinkedIn Pinterest Email

Popis

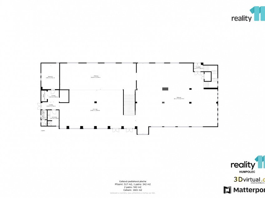
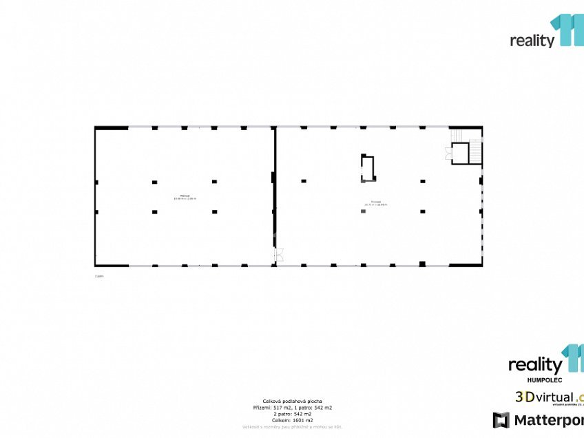
Naše společnost Vám zprostředkuje koupi komerční budovy včetně pozemku ke komerční výstavbě o celkové ploše 8842m². Jedná se o třípodlažní budovu s celkovou užitnou plochou 1601m², s tím, že 1.PP má užitnou plochu 517m², 1.NP má užitnou plochu 542m², 2.NP má užitnou plochu 542m². Stavba byla v minulosti využívána pro vojenské účely v areálu havlíčkobrodských kasáren, aktuálně je využívána ke skladování zboží. Je více možností dalšího komerčního využití a dále možnost výstavby skladovací, výrobní haly na pozemku, který je v územním plánu určen jako plocha VD - plocha výroby a skladování - drobná a řemeslná výroba. Hlavní využití území: malovýroba, řemeslná či přidružená výroba, výrobní i nevýrobní služby, plochy pro malé a střední formy podnikání. Přípustné využití: skladování pro potřeby výroby, podniková administrativa, obchodní zařízení do 2000 m² hrubé podlažní plochy, služební byty správců objektů či nezbytného technického personálu, zařízení a infrastruktura pro průmyslový výzkum, vývoj a inovace ve vazbě na výrobu (více zašleme). Koeficient zastavení pozemku 60. Komerční zóna se nachází na okraji Města Havlíčkův Brod s příjezdem z ulice Humpolecká, dostupnost dálnice D1 velmi dobrá (exit D90 Humpolec je vzdálen 20km). K dispozici pro vás máme půdorysy objektu a dále také 3Dvirtuální prohlídku od společnosti 3Dvirtualcz, kde si objekt můžete projít z pohodlí své kanceláře, svého domova. V případě zájmu o více informací kontaktujte makléře společnosti. Ev. číslo:

Mapa

Místa v okolí

Hodnocení

Celkové hodnocení
Pro snadnější hodnocení realit se prosím zaregistrujte.
*
*

Kalkulačka pojištění nemovitosti

Kontakt makléře

*
*
*
*

Podobné reality