Prodej bytu 2+kk 60 m2

Zpět
náměstí Sv. Vavřince, Horní Blatná
Přidat do oblíbených Nahlásit chybný nebo jinak obtěžující inzerát administrátorovi.

Přehled

Datum vložení
18. 6. 2025
Datum aktualizace
19. 10. 2025
Počet zobrazení
242
Cena
5 175 000 Kč
Typ nemovitosti:
Byt
Druh:
Prodej
ID:
652173
Adresa:
náměstí Sv. Vavřince
Horní Blatná
Praha
Vlastnictví:
Osobní
Dispozice:
2+kk
Vytápění:
Lokální-elektrické
Stav:
Dobrý
Stavba:
Cihlová
Plocha:
60 m2
Podlaží:
3
Energetická náročnost:
F
Vybavení:
Sklepní kóje
Hodnocení:
Inspirace pro Váš byt
Facebook Twitter Google LinkedIn Pinterest Email

Popis

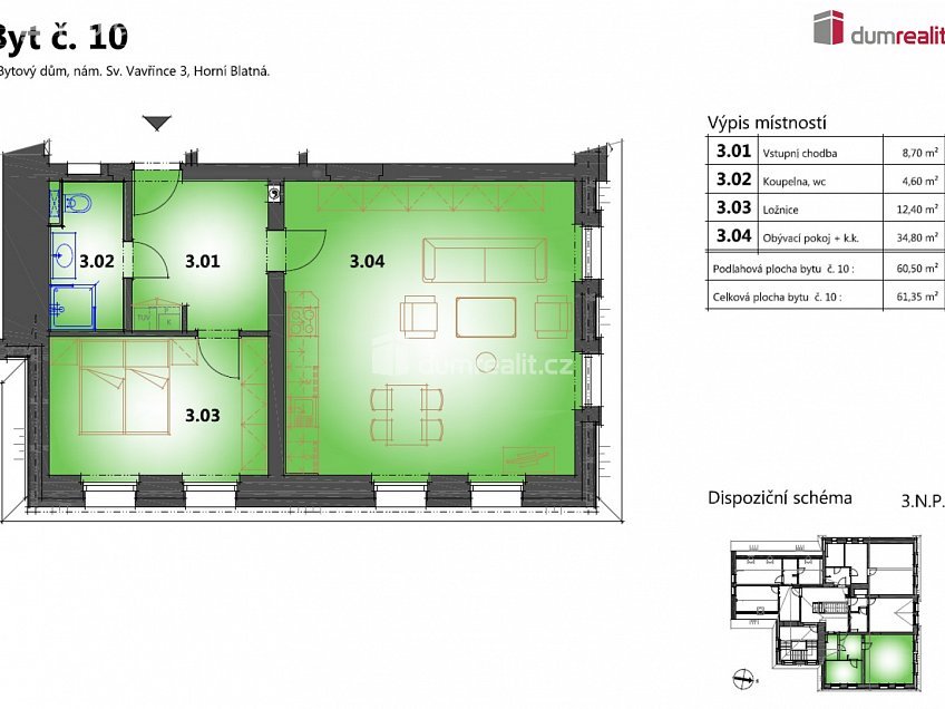
Naše společnost Vám zprostředkuje prodej apartmánů na náměstí Sv. Vavřince v Horní Blatné, které se nachází v blízkosti několika lyžařských areálů jako je Plešivec, Potůčky nebo Klínovec. Apartmán číslo 10. se nachází v druhém patře, je o velikosti 60,5 m² s výhledem na náměstí a kostel Sv.Vavřince. Dispozice bytu 2+KK. Všechny apartmány jsou vybaveny sanitární keramikou v koupelnách, sprchovým koutem Walk-in, podlahovou krytinou a to v kombinaci velkoformátové dlažby a plovoucí podlahy v dekoru dřeva, obložkami, interiérovými a vstupními dveřmi. Nad rámec uvedené ceny je u tohoto apartmánu kuchyňská linka s jídelním stolem a zařízení obývacího pokoje. Součástí jsou také nádherné společné prostory a to včetně sklepního prostoru s možností posezení. Vytápění apartmánů je elektrické s dálkovým ovládáním s připojením na Wi-Fi. V apartmánovém domě se nachází 12 jednotek od 1+KK až po 3+KK různých podlahových výměr. Ke každému apartmánu patří jedno soukromé parkovací místo hned u domu a jedna sklepní kóje, vše je již započítáno v uvedené ceně. Několik apartmánů je již prodáno. Izolant obvodových stěn 16-18cm polystyrenové dílce a 28cm minerální vlna v podkrovní části domu. Nemovitost se nachází přímo na náměstí s výhledem na hory a kostel Sv. Vavřince. Koupě apartmánu je ideální také jako investice, kdy jsou Krušné hory celoročně navštěvovány turisty a Horní Blatná patří svým umístěním mezi nejvíce vyhledávané. V blízkosti apartmánu se nachází Blatenský vrch, Vlčí jámy a mnoho tur

Mapa

Místa v okolí

Hodnocení

Celkové hodnocení
Pro snadnější hodnocení realit se prosím zaregistrujte.
*
*

Kalkulačka pojištění domácnosti

Kontakt makléře

*
*
*
*

Podobné reality