Prodej rodinného domu 220 m2

Zpět
Hazlov
Přidat do oblíbených Nahlásit chybný nebo jinak obtěžující inzerát administrátorovi.

Přehled

Datum vložení
1. 10. 2025
Datum aktualizace
10. 11. 2025
Počet zobrazení
119
Cena
6 250 000 Kč
Typ nemovitosti:
Dům
Druh:
Prodej
ID:
653252
Adresa:
Hazlov
Praha
Typ:
Rodinný
Stav:
Dobrý
Stavba:
Cihlová
Dispozice:
5 a více
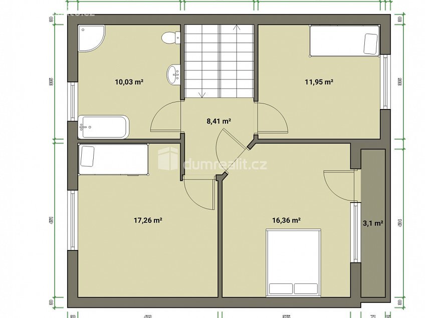
Obytná plocha:
220 m2
Zastavěná plocha:
141 m2
Počet NP:
3
Poloha domu:
Řadový
Energetická náročnost:
G nebo neuvedeno
Hodnocení:
Inspirace pro Váš dům
Facebook Twitter Google LinkedIn Pinterest Email

Popis

Naše společnost Vám zprostředkuje koupi pěkného řadového domu s garáží, parkovacím místem, sklepem, terasou a zahradou v Hazlově u Chebu. Kvalitní cihlový dům z roku 1980 o třech podlažích obklopuje pozemek o celkové rozloze 335 m² a má celkovou užitnou plochu cca 220 m². Dům nabízí dispozici 5+1 s tím, že v přízemí se nachází prostorný obývací pokoj navazující přes jídelní kout na samostatnou kuchyni se zánovní kuchyňskou linkou, dále je zde předsíň, chodba a toaleta. Z jídelního koutu je výstup na terasu a dále na útulnou zahradu s bazénem. V prvním patře jsou tři prostorné ložnice, balkon, velká koupelna s vanou, sprchou, samostatná toaleta. V suterénu je další plnohodnotný pokoj, technická místnost, kde je umístěný kotel, dílna, garáž, sklad, komora, úložný prostor pod schody, sprcha, toaleta, plus příprava na pračku. Dům prošel postupně kompletní rekonstrukcí, suterén je absolutně suchý a odizolovaný. V rámci rekonstrukce je v celém domě nová elektroinstalace, vodoinstalace, odpady, rozvody topení. Nové jsou také podlahy, omítky, štuky, plastová okna a je nová střecha. Budova je zateplená zepředu i ze zadní strany. Cihlový dům vytápí kondenzační plynový kotel (4 roky starý) se zásobníkem na teplou vodu, komín byl nově vyvložkovaný. Dům je napojen na všechny inženýrské sítě včetně kanalizace, vody, elektřiny a plynu. Co se parkování týče, je k dispozici velká vytápěná garáž (s dílnou), další dvě parkovací místa jsou garantovaná na ulici před domem a další auto (menší i dv

Mapa

Místa v okolí

Hodnocení

Celkové hodnocení
Pro snadnější hodnocení realit se prosím zaregistrujte.
*
*

Kalkulačka pojištění domácnosti

Kontakt makléře

*
*
*
*

Podobné reality