Prodej rodinného domu 150 m2

Zpět
Na vyhlídce, Čerčany
Přidat do oblíbených Nahlásit chybný nebo jinak obtěžující inzerát administrátorovi.

Přehled

Datum vložení
3. 10. 2025
Datum aktualizace
11. 2. 2026
Počet zobrazení
1368
Cena
8 400 000 Kč
Typ nemovitosti:
Dům
Druh:
Prodej
ID:
653295
Adresa:
Na vyhlídce
Čerčany
Praha
Typ:
Rodinný
Stav:
Před rekonstrukcí
Stavba:
Cihlová
Dispozice:
5 a více
Obytná plocha:
150 m2
Zastavěná plocha:
100 m2
Počet NP:
3
Poloha domu:
Samostatný
Vytápění domu:
Jiné nebo neuvedeno
Energetická náročnost:
G nebo neuvedeno
Hodnocení:
Inspirace pro Váš dům
Facebook Twitter Google LinkedIn Pinterest Email

Popis

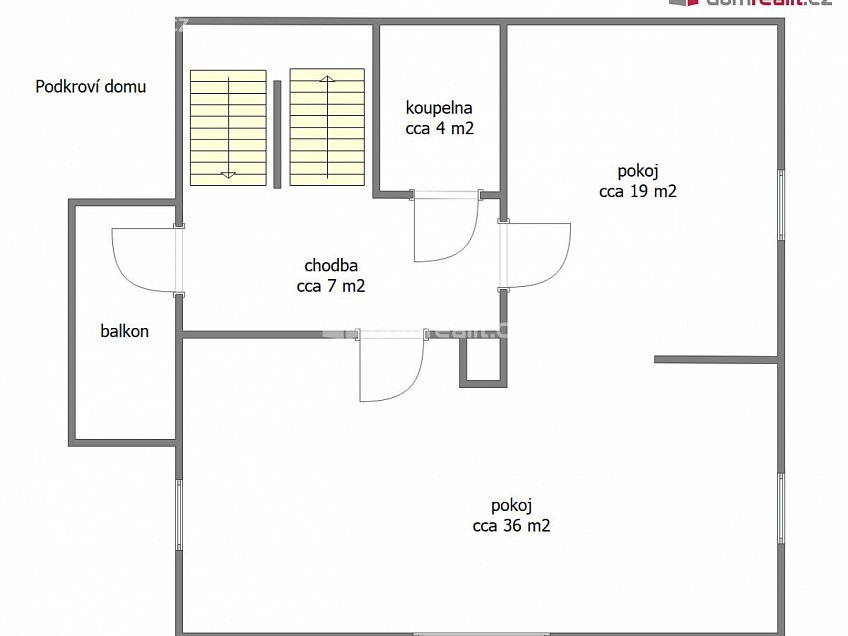
Hledáte klidné bydlení? Nedaleko lesa, města, s dobrou dostupností do Prahy? Tak právě pro Vás mám nabídku na prodej rodinného domu. Dům byl zkolaudovaný v roce 1978. Jeho zastavěná plocha je 100 m². V prvním NP, které je částečně zapuštěné do svahu tvoří technické zázemí domu. Je zde garáž, 5 místností – skladů, plynový kotel, el. bojler a vodárna na studnu, ta je v současné době mimo provoz. V 2.NP se nachází dva pokoje, kuchyně, komora, koupelna a chodba se zádveřím. Je zde umístěn i menší balkon. V 3. NP je možné vybudovat obytné podkroví či další byt. Z chodby v 3.NP je přístupná terasa. V roce 2000 byla kompletně vyměněna střecha včetně krovů, tašky jsou betonové. V roce 2022 byl instalován plynový kotel a ústřední topení. Okna jsou původní. Dům je napojen na veškeré inženýrské sítě, vodu, plyn, elektřinu a kanalizaci. Okolí domu tvoří lesy, obora a pole. Do centra města je to cca 5 min autem. Do centra Prahy cca 40 km. Pro bližší informace volejte makléře. Ev. číslo: 652681.

Mapa

Místa v okolí

Hodnocení

Celkové hodnocení
Pro snadnější hodnocení realit se prosím zaregistrujte.
*
*

Kalkulačka pojištění nemovitosti

Kontakt makléře

*
*
*
*

Podobné reality