Pronájem obchodních prostor 143 m2

Zpět
Štúrova, Praha 4
Přidat do oblíbených Nahlásit chybný nebo jinak obtěžující inzerát administrátorovi.

Přehled

Datum vložení
6. 10. 2025
Datum aktualizace
26. 12. 2025
Počet zobrazení
165
Cena
360 Kč za m2 za měsíc
+ služby a elektroměr
Typ nemovitosti:
Komerční
Druh:
Pronájem
ID:
653279
Adresa:
Štúrova
Praha 4
Praha
Typ:
Obchodní prostory
Stav:
Novostavba
Stavba:
Skeletová
Plocha:
143 m2
Vytápění domu:
Ústřední-tuhá paliva
Energetická náročnost:
B
Hodnocení:
Facebook Twitter Google LinkedIn Pinterest Email

Popis

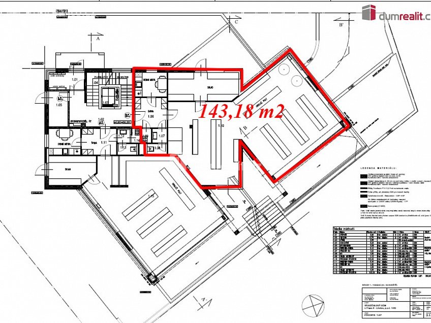
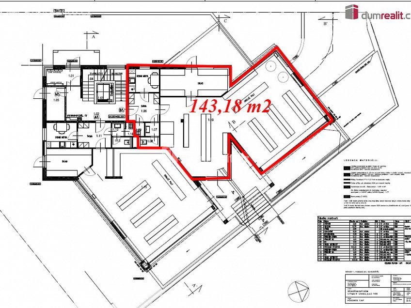
Naše společnost Vám zprostředkuje exkluzivně pronájem zcela nového komerčního prostoru o velikosti 143,18 m², v nově stavěné budově (PENB – B) přímo u budoucí stanice metra D - Nové Dvory (přes ulici Štúrova), která bude dokončena v druhé polovině roku 2026. Tento prostor se nachází v přízemí třípatrové nízkoenergetické budovy, kde v přízemí je nabízený prostor o velikosti 143,18 m², který bude mít hlavní vstup z ulice Štúrova přímo od zastávky MHD / Bus – Tempo, vstup bude přes schodiště a také bude plně bezbariérový. Prostor 143,18 m² může být jako obchodní (např. kavárna, prodejna, pekárna) nebo jako kancelář / showroom nebo i ordinace, výběr je plně na klientovi. Prostor lze plně modifikovat, lze ho rozšířit o další prostor nabízený k pronájmu o velikosti 114,94 m² s vlastním zázemím a samostatným vstupem. K dispozici bude toaleta, šatna, předsíň a úklidová místnost. K prostoru lze dopronajmout venkovní terasu a menší zahrádku, dále parkovací stání a popř. sklepy. V domě bude 12 parkovací stání v suterénu domu, 6 x sklep a dále lze pronajmout až 3 venkovní parkovací stání. Aktuálně se v domě instalují okna, sdk příčky a klimatizace.Tato budova bude dokončena a zkolaudována v druhé polovině roku 2026, již nyní mohou probíhat prohlídky a úpravy prostor před dokončením přímo na přání nového nájemce. Velmi doporučuji všem zájemcům, kteří již nyní hledají atraktivní prostor u budoucí stanice metra D – Nové Dvory, v ulici Štúrova, Praha 4. Ev. číslo: 652665.

Mapa

Místa v okolí

Hodnocení

Celkové hodnocení
Pro snadnější hodnocení realit se prosím zaregistrujte.
*
*

Kalkulačka pojištění domácnosti

Kontakt makléře

*
*
*
*

Podobné reality