Prodej rodinného domu 470 m2

Zpět
Stradonice
Přidat do oblíbených Nahlásit chybný nebo jinak obtěžující inzerát administrátorovi.

Přehled

Datum vložení
13. 10. 2025
Datum aktualizace
6. 11. 2025
Počet zobrazení
124
Cena
12 499 000 Kč
Typ nemovitosti:
Dům
Druh:
Prodej
ID:
650376
Adresa:
Stradonice
Praha
Typ:
Rodinný
Stav:
Dobrý
Stavba:
Smíšená
Dispozice:
3+kk
Obytná plocha:
470 m2
Zastavěná plocha:
254 m2
Počet NP:
2
Poloha domu:
Samostatný
Energetická náročnost:
G nebo neuvedeno
Hodnocení:
Inspirace pro Váš dům
Facebook Twitter Google LinkedIn Pinterest Email

Popis

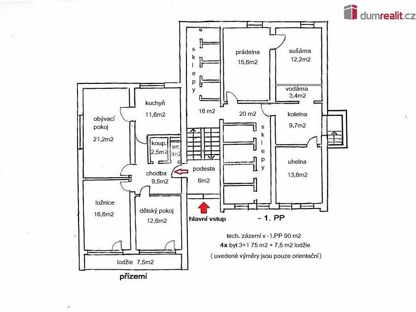
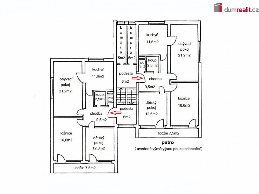
Ve výhradním zastoupení majitele Vám nabízím bytový dům o čtyřech bytových jednotkách s celkovou plochou 470 m² na pozemku 1.814 m² v obci Stradonice u Slaného, jen 30min po D7 na metro B Zličín – ideální místo pro velkou rodinu, zázemí firmy a podnikání, nebo developera. Bytový dům (betonový skelet vyplněný cihlami) byl dokončen v r. 1980 a po úpravách kolaudován v r. 1993. Obsahuje tech. zázemí cca 90 m² v -1.PP a 4 stejné byty 3+1 o výměře 75 m² + 7,5 m² lodžie. V domě je dostatek úložných prostor, v -1.PP jsou sklepy, k praktickému využití prádelna a sušárna a u každého bytu je na chodbě úložná komora. Vytápění zajišťuje automatický kotel na uhlí (EURO 5) + el.kotel napojený na radiátory, pro ohřev teplé vody má každý byt el. bojler. Voda je do domu přivedena přes vodárnu ze studny a odpad do jímky, ale v letošním roce je v obci plánováno připojení na obecní vodovod a kanalizaci, realizace nyní probíhá, základní příprava pro napojení u domu je hotová. Dům je plně funkční, před 8 lety byly udělány nové rozvody topení v mědi, jinak je v původním stavu, který si zaslouží rekonstrukci. Před domem je velká zpevněná plocha na parkování a 3 garáže, za nimi na druhé příjezdové cestě k domu lze pohodlně parkovat kamión s návěsem. Na pěkné zahradě (1.417 m²) jsou za domem 4 zděné úložné kůlny a dostatek prostoru k zahradničení, zábavě a odpočinku. Bytový dům se včetně zahrady prodává jako celek, jednotlivé byty nejsou na katastrálním úřadu vymezené (zapsané), proto si je může

Mapa

Místa v okolí

Hodnocení

Celkové hodnocení
Pro snadnější hodnocení realit se prosím zaregistrujte.
*
*

Kalkulačka pojištění nemovitosti

Kontakt makléře

*
*
*
*

Podobné reality