Prodej rodinného domu 127 m2

Zpět
Bří Čapků, Neratovice
Přidat do oblíbených Nahlásit chybný nebo jinak obtěžující inzerát administrátorovi.

Přehled

Datum vložení
17. 10. 2025
Datum aktualizace
19. 12. 2025
Počet zobrazení
471
Cena
10 400 000 Kč
Typ nemovitosti:
Dům
Druh:
Prodej
ID:
653441
Adresa:
Bří Čapků
Neratovice
Praha
Typ:
Rodinný
Stav:
Dobrý
Stavba:
Cihlová
Dispozice:
Atypický
Obytná plocha:
127 m2
Zastavěná plocha:
79 m2
Počet NP:
3
Poloha domu:
Samostatný
Vytápění domu:
Jiné nebo neuvedeno
Energetická náročnost:
G nebo neuvedeno
Hodnocení:
Inspirace pro Váš dům
Facebook Twitter Google LinkedIn Pinterest Email

Popis

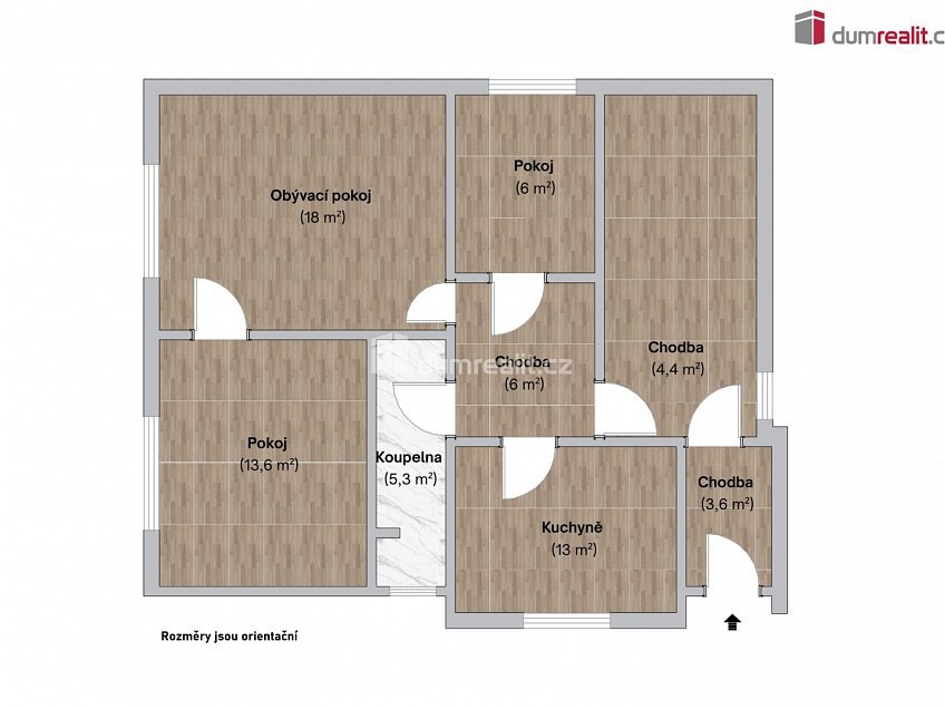
Naše společnost Vám zprostředkuje Možný prodej domu o dvou bytových jednotkách 3+1, se sklepem, garáží, dílnou a studnou. Jde o zděný rodinný dům z roku 1982. Okna jsou plastová s izolačním dvojsklem. Dům prošel částečnou rekonstrukcí. Koupelny, vytápění a elektřina v 2.NP. Střecha je z alukrytu a vše je ještě pokryto modifikovaným plastem. Dům je vytápěn plynovým kotlem, vodu ohřívá elektrický bojler. V každém patře, které je propojené schodištěm se nachází byt 3+1. Dispozice domu umožňuje byty oddělit. Společné by zůstalo jen zádveří a spodní chodba. Lze tedy využívat dům jako dvougenerační. Ve dvou pokojích v 2.NP je instalovaná klimatizace. Pozemek je oplocený, vjezd uzavírá brána na el. pohon Hormann. Garáž má vrata sklopná. Stávající studna je využívána na automatickou závlahu pozemku. K dispozici je i menší dílna, sklad. Dům leží v blízkosti centra města s výbornou dostupností k občanské vybavenosti. Školky, školy či gymnázium a díle sportoviště- fotbalové hřiště, hokejový stadion či atletická dráha jen dokreslují kvalitu bydlení. Neratovice jsou velmi dobře dostupné do Prahy či na Mělník. A to jak vlakem, autem či autobusem prostřednictvím PID. Pro bližší informace volejte makléře. Prohlídky jsou možné po dohodě. Ev. číslo: 652827.

Mapa

Místa v okolí

Hodnocení

Celkové hodnocení
Pro snadnější hodnocení realit se prosím zaregistrujte.
*
*

Kalkulačka pojištění domácnosti

Kontakt makléře

*
*
*
*

Podobné reality