Pronájem obchodních prostor 342 m2

Zpět
Jaktáře, Uherské Hradiště
Přidat do oblíbených Nahlásit chybný nebo jinak obtěžující inzerát administrátorovi.

Přehled

Datum vložení
21. 10. 2025
Datum aktualizace
26. 12. 2025
Počet zobrazení
196
Cena
7 000 Kč za měsíc
Uvedená cena bez energií.
Typ nemovitosti:
Komerční
Druh:
Pronájem
ID:
653480
Adresa:
Jaktáře
Uherské Hradiště
Praha
Typ:
Obchodní prostory
Stav:
Dobrý
Stavba:
Cihlová
Plocha:
342 m2
Energetická náročnost:
G nebo neuvedeno
Hodnocení:
Facebook Twitter Google LinkedIn Pinterest Email

Popis

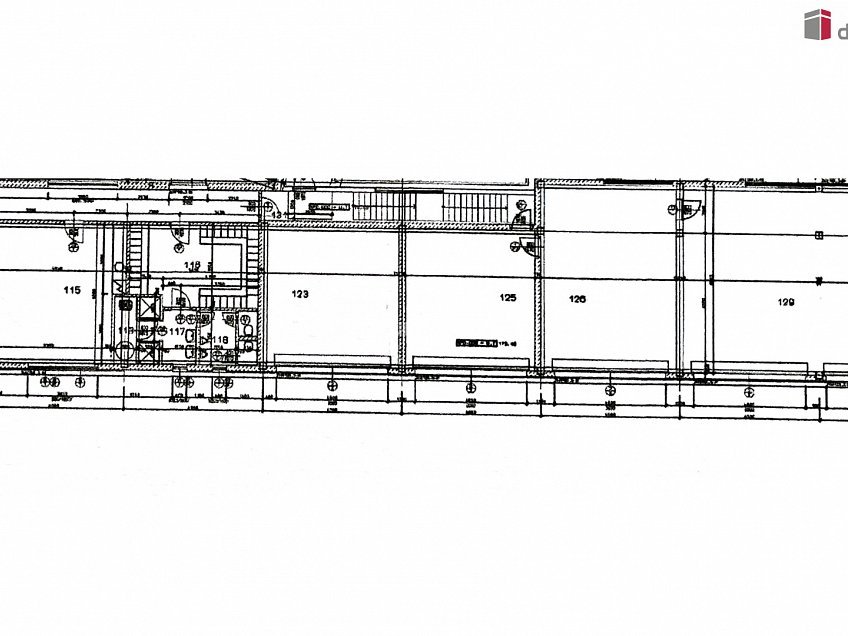
Naše společnost Vám zprostředkuje pronájem rozsáhlých komerčních prostor o celkové podlahové výměře 342 m², které zahrnují: sklady, garáže, kanceláře, šatny, sprchy, sociální zázemí a parkovací plochy MOŽNÝ PRONÁJEM I PO ČÁSTECH – to vše v žádané průmyslové části Uherského Hradiště, na ulici Jaktáře. Prostory jsou vhodné jako kompletní zázemí pro skladování, výrobu, servis či jiné průmyslové využití. Úpravy prostor dle potřeb nájemce jsou možné po dohodě. K dispozici jsou také parkovací místa v uzavřeném dvoře areálu. Cena nájmu: Od 7.000 Kč / měsíc + spotřeba energií (voda, elektřina) Pro více informací kontaktujte makléře. Doporučujeme osobní prohlídku. Ev. číslo: 652866.

Mapa

Místa v okolí

Hodnocení

Celkové hodnocení
Pro snadnější hodnocení realit se prosím zaregistrujte.
*
*

Kalkulačka pojištění nemovitosti

Kontakt makléře

*
*
*
*

Podobné reality