Prodej domu na klíč 260 m2

Zpět
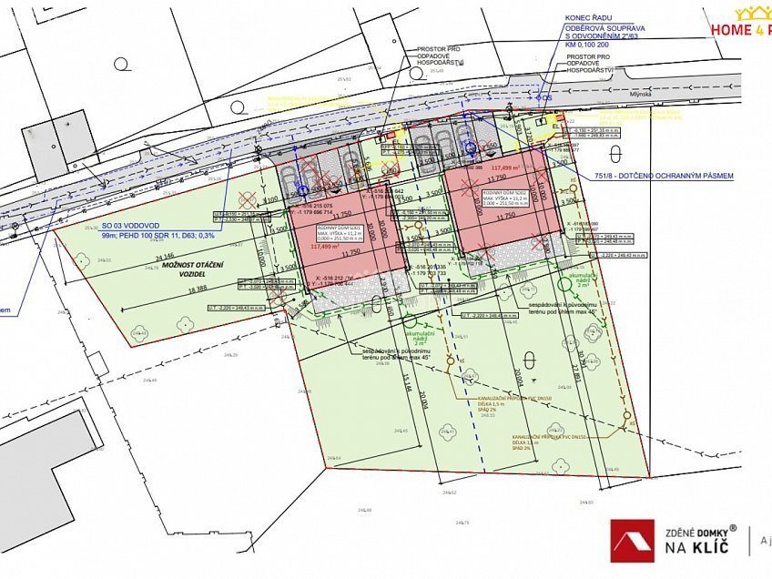
Mlýnská, Luhačovice
Přidat do oblíbených Nahlásit chybný nebo jinak obtěžující inzerát administrátorovi.

Přehled

Datum vložení
5. 11. 2025
Datum aktualizace
5. 11. 2025
Počet zobrazení
9
Cena
0 Kč
Cena včetně výstavby bytu, kolaudace, pozemku, terasy, parkování a zahrady.
Typ nemovitosti:
Dům
Druh:
Prodej
ID:
31950
Adresa:
Mlýnská
Luhačovice
Praha
Typ:
Na klíč
Stav:
Výstavba
Stavba:
Cihlová
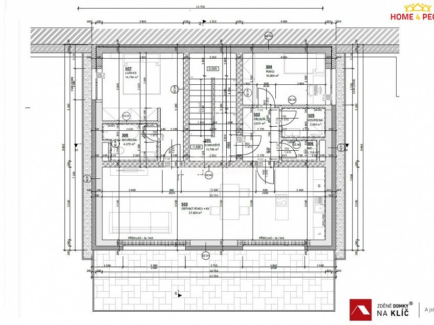
Dispozice:
5 a více
Obytná plocha:
260 m2
Zastavěná plocha:
117 m2
Počet NP:
3
Poloha domu:
Samostatný
Energetická náročnost:
A
Hodnocení:
Inspirace pro Váš dům
Facebook Twitter Google LinkedIn Pinterest Email

Popis

Zprostředkujeme Vám Exkluzivní nabídku výstavby prostorného rodinného domu 5+kk na klíč v Luhačovicích s terasou, zahradou a parkovacím stáním pro 2 auta (možnost vybudovat i garáž). Tento luxusní třípodlažní dům se nachází v centru města Luhačovice a má možnost využití přízemí jako komerční prostory. Dispozice domu je ideální pro rodiny či páry, kteří hledají moderní a komfortní bydlení. Obývací pokoj s kuchyňským koutem, ložnice, dětský pokoj a dvě koupelny s WC poskytují veškerý prostor potřebný pro pohodlné bydlení. Nenechte si ujít tuto jedinečnou příležitost vlastnit luxusní RD v centru Luhačovic. Pro více informací nás kontaktujte. Ev. číslo: 31950.

Mapa

Místa v okolí

Hodnocení

Celkové hodnocení
Pro snadnější hodnocení realit se prosím zaregistrujte.
*
*

Kalkulačka pojištění nemovitosti

Kontakt makléře

*
*
*
*

Podobné reality