Prodej domu na klíč 260 m2

Zpět
Mlýnská, Luhačovice
Přidat do oblíbených Nahlásit chybný nebo jinak obtěžující inzerát administrátorovi.

Přehled

Datum vložení
7. 11. 2025
Datum aktualizace
14. 12. 2025
Počet zobrazení
139
Cena
0 Kč
Cena včetně výstavby domu, kolaudace, pozemku, terasy, parkování a zahrady. Dům č.2.
Typ nemovitosti:
Dům
Druh:
Prodej
ID:
31950
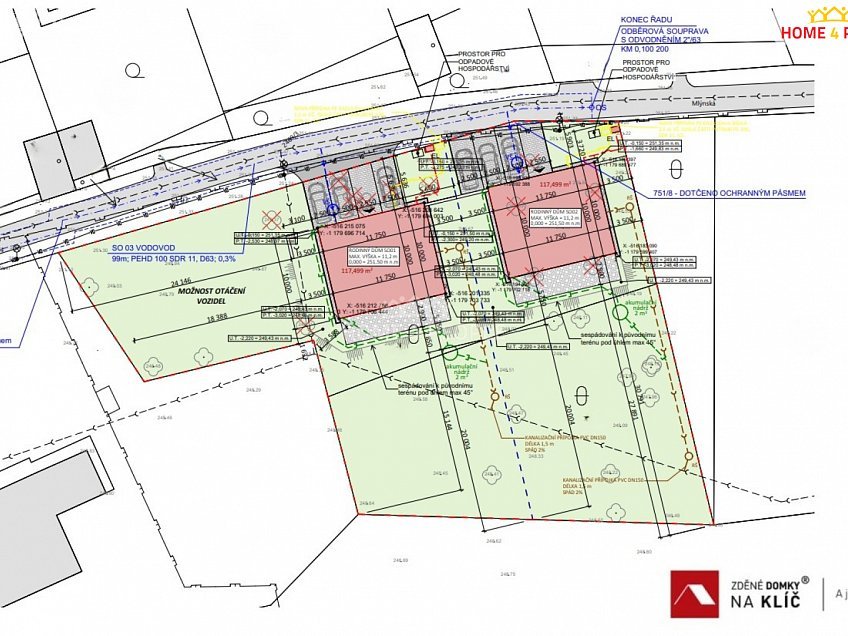
Adresa:
Mlýnská
Luhačovice
Praha
Typ:
Na klíč
Stav:
Výstavba
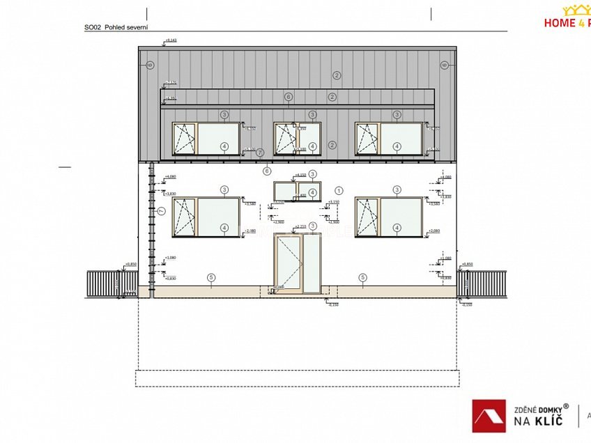
Stavba:
Cihlová
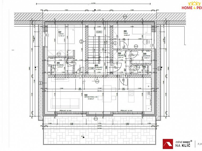
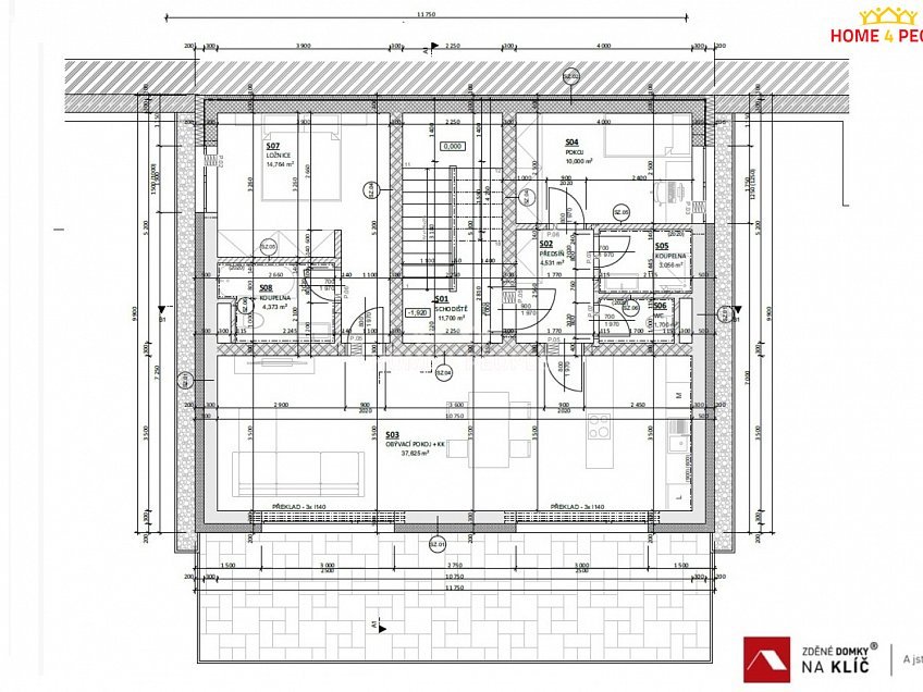
Dispozice:
5 a více
Obytná plocha:
260 m2
Zastavěná plocha:
117 m2
Počet NP:
3
Poloha domu:
Samostatný
Energetická náročnost:
A
Hodnocení:
Inspirace pro Váš dům
Facebook Twitter Google LinkedIn Pinterest Email

Popis

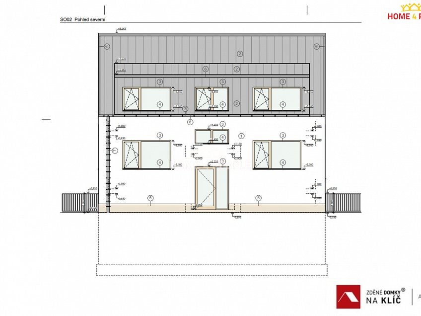
Zprostředkujeme Vám výstavbu novostavby domu 6+kk s komercí, terasou, zahradou a parkovacím místem přímo v Srdci Luhačovic. Představujeme vám jedinečnou příležitost vlastnit moderní a flexibilní třípodlažní rodinný dům na klíč, situovaný v samém centru prestižních Luhačovic. Tato luxusní novostavba splňuje ty nejvyšší nároky na komfortní bydlení a zároveň otevírá neomezené možnosti pro investici a podnikání. Bydlení, kde se potkává luxus s flexibilitou Nepřekonatelná poloha: Bydlete v pěší dostupnosti lázeňské kolonády, kaváren a veškeré občanské vybavenosti. Život v centru Luhačovic nikdy nebyl pohodlnější. Prostornost a design: Dům o dispozici 6+kk s promyšleným třípodlažním uspořádáním poskytuje dostatek soukromí a prostoru pro velkou rodinu. Komfort každého patra: Každé podlaží je navrženo pro maximální pohodlí, včetně samostatné koupelny s WC, což umožňuje snadné rozdělení na až 3 nezávislé bytové jednotky. Váš Soukromý relax: Vychutnejte si ranní kávu nebo večerní posezení na prostorné terase s výhledem do privátní zahrady, která tvoří klidnou oázu uprostřed města. Nadstandardní potenciál pro Váš Business Jedinečná možnost využít přízemí domu jako reprezentativní komerční prostory (kanceláře, ordinace, ateliér) s vlastním vstupem, čímž získáte ideální kombinaci bydlení a podnikání pod jednou střechou. Parkování a zázemí Pohodlné parkování: Zajištěno je parkovací stání pro 2 automobily přímo u domu. Projekt domu nakreslený a schválený. Stavební povolení vydané, můž

Mapa

Místa v okolí

Hodnocení

Celkové hodnocení
Pro snadnější hodnocení realit se prosím zaregistrujte.
*
*

Kalkulačka pojištění domácnosti

Kontakt makléře

*
*
*
*

Podobné reality