Prodej bytu 2+kk 49 m2

Zpět
V závětří, Praha 7
Přidat do oblíbených Nahlásit chybný nebo jinak obtěžující inzerát administrátorovi.

Přehled

Datum vložení
14. 11. 2025
Datum aktualizace
15. 12. 2025
Počet zobrazení
113
Cena
8 990 000 Kč
+popl. 4177, Cena včetně provize a právního servisu Prodávající si vyhrazuje právo vybrat kupujícího na základě
Typ nemovitosti:
Byt
Druh:
Prodej
ID:
27824
Adresa:
V závětří
Praha 7
Praha
Vlastnictví:
Osobní
Dispozice:
2+kk
Vytápění:
Ústřední-plynové
Stav:
Dobrý
Stavba:
Cihlová
Plocha:
49 m2
Podlaží:
6
Energetická náročnost:
D
Vybavení:
Sklepní kóje
Výtah
Balkon
Hodnocení:
Inspirace pro Váš byt
Facebook Twitter Google LinkedIn Pinterest Email

Popis

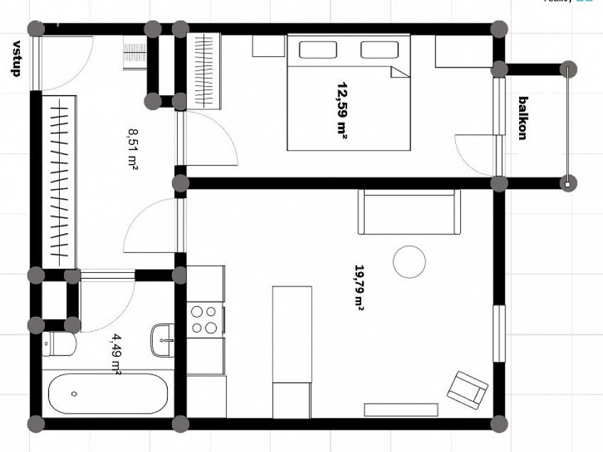
Exkluzivně nabízím ke koupi stylový dvoupokojový byt o výměře 49 m², který se nachází v 6. podlaží panelového domu z celkových 8.podlaží. Dům prošel kompletní rekonstrukcí v roce 2021, je celkově zateplený a je vybaven výtahem. Nachází se jen pár minut chůze od Stromovky, metra linky C či tramvajových zastávek. Jako vítaný bonus je zde velmi dostupné parkování. Byt je dispozičně členěn na obývací pokoj s kuchyní, ložnici s balkónkem, předsíní, koupelnou s WC dohromady (s vanou a umyvadlem) a šikovným koutem na pračku a sušičku. Předsíň o výměře 8,51 m² Obývací pokoj s kuchyní o výměře 19,79 m² Ložnice o výměře 12,59 m² Koupelna s WC o výměře 4,49 m² Sklepní kóje o výměře 2,83 m² Minimalistický interiér bytu podtrhuje elegantní a nadčasový design kuchyňského koutu. Byt má plastová okna, vinylové podlahy a v chodbě velké množství úložných prostor na míru (vestavěné skříně jsou z roku 2022). Moderní kuchyňská linka je vybavena vestavěnými spotřebiči. Holešovice prošly v posledních letech dynamickým rozvojem a staly se jednou z nejatraktivnějších pražských lokalit. Skvělá dostupnost centra, výborná občanská vybavenost a široká škála volnočasových aktivit dělají z této adresy skvělé místo pro život. Nedaleká Královská obora Stromovka láká k relaxaci, sportu i bohatému společenskému vyžití. V okolí se nachází školy, školky, galerie, divadla, moderní kavárny, vyhlášené restaurace i designové obchody. Místo je perfektně dostupné MHD stanice metra: 250 m Nádraží Holešovice zastá

Mapa

Místa v okolí

Hodnocení

Celkové hodnocení
Pro snadnější hodnocení realit se prosím zaregistrujte.
*
*

Kalkulačka pojištění nemovitosti

Kontakt makléře

*
*
*
*

Podobné reality