Prodej domu na klíč 121 m2

Zpět
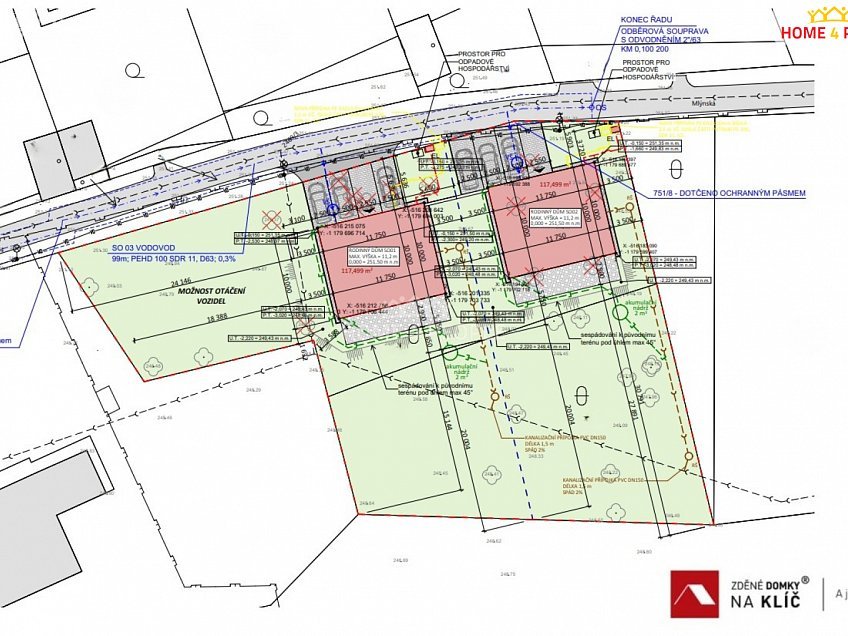
Mlýnská, Luhačovice
Přidat do oblíbených Nahlásit chybný nebo jinak obtěžující inzerát administrátorovi.

Přehled

Datum vložení
20. 11. 2025
Datum aktualizace
22. 12. 2025
Počet zobrazení
879
Cena
10 699 000 Kč
Cena včetně výstavby domu, kolaudace, pozemku, terasy, parkování a zahrady. Dům č.1
Typ nemovitosti:
Dům
Druh:
Prodej
ID:
32009
Adresa:
Mlýnská
Luhačovice
Praha
Typ:
Na klíč
Stav:
Výstavba
Stavba:
Cihlová
Dispozice:
4+kk
Obytná plocha:
121 m2
Zastavěná plocha:
81 m2
Počet NP:
2
Poloha domu:
Samostatný
Energetická náročnost:
A
Hodnocení:
Inspirace pro Váš dům
Facebook Twitter Google LinkedIn Pinterest Email

Popis

Zprostředkujeme Vám výstavbu novostavby rodinného domu 4+kk o celkové podlahové výměře 121 m² s terasou, zahradou a parkovacím místem přímo v srdci Luhačovic. Představujeme vám jedinečnou příležitost vlastnit moderní a flexibilní dvoupodlažní rodinný dům na klíč, situovaný v samém centru prestižních Luhačovic. Tato luxusní novostavba splňuje ty nejvyšší nároky na komfortní bydlení a zároveň otevírá neomezené možnosti pro investici a podnikání. Bydlení, kde se potkává luxus s flexibilitou. Bydlete v pěší dostupnosti centra města, lázeňské kolonády a veškeré občanské vybavenosti. Život v centru Luhačovic nikdy nebyl pohodlnější. Dům o dispozici 5+kk s promyšleným dvoupodlažním uspořádáním poskytuje dostatek soukromí a prostoru pro velkou rodinu. Každé podlaží je navrženo pro maximální pohodlí, včetně samostatné koupelny s WC. Vychutnejte si ranní kávu nebo večerní posezení na prostorné terase s výhledem do privátní zahrady, která tvoří klidnou oázu uprostřed města. Zajištěno je parkovací stání pro 2 automobily přímo u domu. Nenechte si ujít tuto exkluzivní šanci vlastnit luxusní rodinnou vilu v jedné z nejvyhledávanějších lázeňských lokalit v Česku. Ať už hledáte ideální rodinné sídlo, nebo chytrou investiční příležitost, tento dům je připraven splnit vaše sny. Projekt domu nakreslený a schválený. Stavební povolení vydané, můžeme zahájit stavbu do 14 dnů od podpisu smlouvy. Pro kompletní specifikace, vizualizace a sjednání osobní schůzky nás neváhejte kontaktovat. Ev. čí

Mapa

Místa v okolí

Hodnocení

Celkové hodnocení
Pro snadnější hodnocení realit se prosím zaregistrujte.
*
*

Kalkulačka pojištění nemovitosti

Kontakt makléře

*
*
*
*

Podobné reality