Prodej bytu 5+kk 144 m2

Zpět
Americká, Praha 2
Přidat do oblíbených Nahlásit chybný nebo jinak obtěžující inzerát administrátorovi.

Přehled

Datum vložení
25. 11. 2025
Datum aktualizace
25. 11. 2025
Počet zobrazení
6
Cena
20 980 000 Kč
Typ nemovitosti:
Byt
Druh:
Prodej
ID:
653534
Adresa:
Americká
Praha 2
Praha
Vlastnictví:
Osobní
Dispozice:
5+kk
Stav:
Dobrý
Stavba:
Cihlová
Plocha:
144 m2
Podlaží:
5
Energetická náročnost:
G nebo neuvedeno
Hodnocení:
Inspirace pro Váš byt
Facebook Twitter Google LinkedIn Pinterest Email

Popis

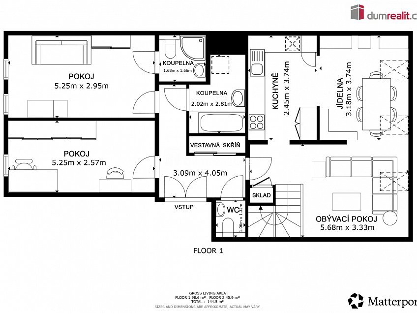
Exkluzivní prodej mezonetové bytové jednotky 5+kk s terasou a výhledem na Prahu - Ulice Americká, Praha 2 – Vinohrady. V srdci vyhledávaných Vinohrad, v jedné z nejstylovějších ulic, nabízíme k prodeji prostorný mezonetový byt 5+kk s terasou, který spojuje eleganci, funkčnost a neopakovatelnou atmosféru pražských střech. Byt se nachází v udržovaném cihlovém domě s výtahem a zaujme nejen svou velkorysou dispozicí, ale i dokonalým propojením světla, prostoru a soukromí. Vytápění je zajištěno plynovým kotlem, přičemž teplo lze dodatečně regulovat také prostřednictvím klimatizace s funkcí tepelného čerpadla. Po vstupu do bytu vás přivítá vstupní chodba, která v levé části vede do dvou samostatných pokojů a dvou koupelen – jedna je vybavena vanou, druhá sprchovým koutem a toaletou. Na pravé straně se otevírá světlý obývací prostor s moderní kuchyní a jídelní částí. Kuchyňská linka nabízí dostatek pracovního i úložného místa a přirozeně navazuje na obývací pokoj, který je ideálním místem pro společná setkání či odpočinek. Dominantou obývací části je stylové schodiště vedoucí do druhého podlaží mezonetu. Pod schodištěm je chytře řešený úložný prostor, který nenarušuje estetiku interiéru. Na chodbě je k dispozici samostatná toaleta s umyvadlem. V horní úrovni se nachází komfortní ložnice s vlastní koupelnou (sprchový kout, toaleta) a samostatnou šatnou. Z ložnice je přímý vstup na terasu s panoramatickým výhledem na Prahu – místo, které si zamilujete pro ranní kávu i večerní pohodu.

Mapa

Místa v okolí

Hodnocení

Celkové hodnocení
Pro snadnější hodnocení realit se prosím zaregistrujte.
*
*

Kalkulačka pojištění nemovitosti

Kontakt makléře

*
*
*
*

Podobné reality