Prodej stavebního pozemku 1057 m2

Zpět
Želiv
Přidat do oblíbených Nahlásit chybný nebo jinak obtěžující inzerát administrátorovi.

Přehled

Datum vložení
10. 12. 2025
Datum aktualizace
10. 12. 2025
Počet zobrazení
8
Cena
1 767 Kč za m2
Typ nemovitosti:
Pozemek
Druh:
Prodej
ID:
27344
Adresa:
Želiv
Praha
Typ:
Bydlení
Plocha:
1057 m2
Hodnocení:
Facebook Twitter Google LinkedIn Pinterest Email

Popis

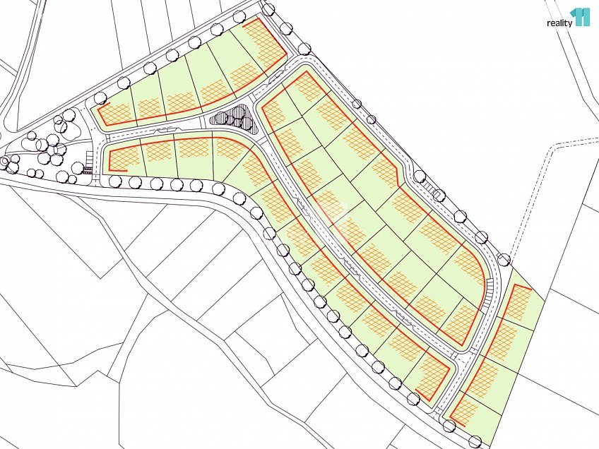
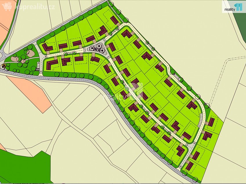
Dovoluji si nabídnout ke koupi stavební pozemek v obci Želiv. Lokalita Pod Haštalem je nově vznikající části obce. Samotná obec kompletně zajištuje zasíťování jednotlivých pozemků, výstavbu komunikací, chodníků i veřejného osvětlení. V listopadu proběhla kolaudace přípojek inženýrských sítí (vodovod, kanalizace, elektřina a datový kabel). Lokalita nabízí rozmanité výměry pozemků od 800 do 1211m². Prodej stavebních pozemků bude probíhat formou obálkové metody. Minimální nabídka činí 1760,60,-Kč za 1 metr čtvereční pozemku. Detaily i pravidla pro podání nabídky Vám rádi vysvětlíme. Lokalita pod Haštalem se nachází v klidné části obce Želiv. V docházkové vzdálenosti je škola, školka, restaurace i obchody. Želiv je perfektně fungující obec s ideálním zázemím pro rodinný život. Výhodou je také poloha obce. Města Humpolec i Pelhřimov se nachází v dojezdové vzdálenosti 15 minut. Obcí protéká řeka Želivka. Na dohled od parcel stojí vodní nádrž Trnávka, která je oblíbenou destinací v letních měsících (koupání, rybolov i vodní sporty). Nepropásněte tuto jedinečnou příležitost a zajistěte si své místo pro stavbu domu. Pro více informací kontaktujte realitního specialistu. Ev. číslo: 27344.

Mapa

Místa v okolí

Hodnocení

Celkové hodnocení
Pro snadnější hodnocení realit se prosím zaregistrujte.
*
*

Kalkulačka pojištění domácnosti

Kontakt makléře

*
*
*
*

Podobné reality