Pronájem bytu 2+kk 56 m2

Zpět
Vyšenská, Český Krumlov
Přidat do oblíbených Nahlásit chybný nebo jinak obtěžující inzerát administrátorovi.

Přehled

Datum vložení
19. 12. 2025
Datum aktualizace
19. 12. 2025
Počet zobrazení
5
Cena
13 700 Kč za měsíc
+popl. 2300, + elektřina. Kauce 30.000,-, odměna RK 16.000,-.
Typ nemovitosti:
Byt
Druh:
Pronájem
ID:
653459
Adresa:
Vyšenská
Český Krumlov
Praha
Vlastnictví:
Družstevní
Dispozice:
2+kk
Vytápění:
Ústřední-dálkové
Stav:
Dobrý
Stavba:
Cihlová
Plocha:
56 m2
Podlaží:
3
Energetická náročnost:
B
Vybavení:
Balkon
Sklepní kóje
Hodnocení:
Inspirace pro Váš byt
Facebook Twitter Google LinkedIn Pinterest Email

Popis

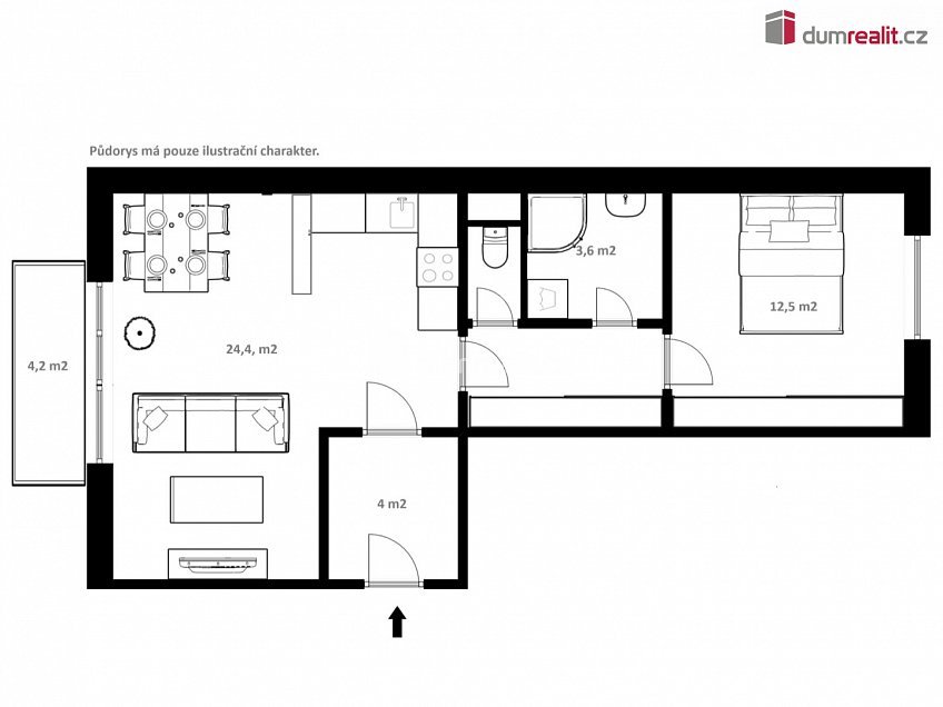
Naše společnost Vám zprostředkuje pronájem bytu 2+kk s balkonem, o 56 m², ve druhém patře patře třípatrového zděného domu bez výtahu, v klidné části Českého Krumlova, ul. Vyšenská, sídliště Vyšný. Nadstandardní byt prošel v nedávné době kompletní revitalizací a nabízí se k pronájmu bez vybavení/nábytku. Sestává ze zádveří, obýváku o 24,4 m² s moderní kuchyňskou linkou s dostatkem prostoru pro jídelní stůl a s přístupem na balkon o cca 4,2 m², úplně nové koupelny se sprchovým koutem, umyvadlem s místem pro pračku, chodby s vestavěnou skříní a ložnice o o cca 12,5 m². Dům je průběžně udržovaný, klidný. Bezproblémové parkování na veřejném parkovišti před domem. Zastávka MHD 258 m od domu. Měsíční nájem činní 13.700,- plus 2.300,- jako zálohová platba na vodu, TUV a topení, s termínem platby v měsíci předcházejícím, plus elektřina na samostatnou smlouvu nájemníka s dodavatelem (E.ON). Kauce 30.000,-, odměna RK za zprostředkování příležitosti uzavřít Smlouvu o nájmu 16.000,-. Byt je vhodný spíše pro menší počet osob 1-3. Volné po dohodě Ev. číslo: 652845.

Mapa

Místa v okolí

Hodnocení

Celkové hodnocení
Pro snadnější hodnocení realit se prosím zaregistrujte.
*
*

Kalkulačka pojištění nemovitosti

Kontakt makléře

*
*
*
*

Podobné reality