Prodej domu na klíč 176 m2

Zpět
Tečovice
Přidat do oblíbených Nahlásit chybný nebo jinak obtěžující inzerát administrátorovi.

Přehled

Datum vložení
3. 2. 2026
Datum aktualizace
19. 4. 2026
Počet zobrazení
5080
Cena
0 Kč
Cena včetně pozemku, projektu, stavebního povolení, výstavby domu na klíč, kolaudace a parkování
Typ nemovitosti:
Dům
Druh:
Prodej
ID:
654556
Adresa:
Tečovice
Praha
Typ:
Na klíč
Stav:
Výstavba
Stavba:
Cihlová
Dispozice:
5 a více
Obytná plocha:
176 m2
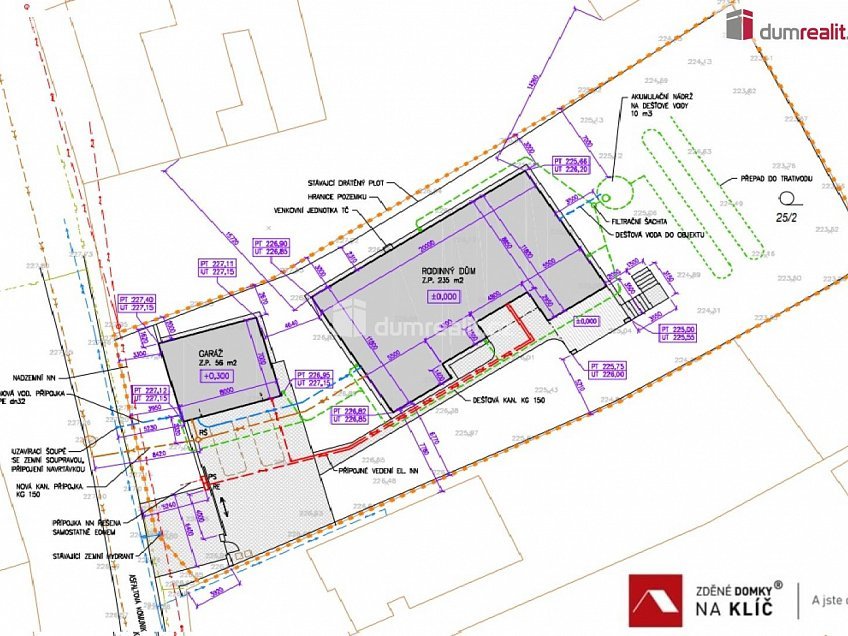
Zastavěná plocha:
235 m2
Počet NP:
1
Poloha domu:
Samostatný
Energetická náročnost:
A
Hodnocení:
Inspirace pro Váš dům
Facebook Twitter Google LinkedIn Pinterest Email

Popis

Moderní rodinné sídlo v srdci Tečovic: Prostor, úspora a komfort na klíč Hledáte dokonalé místo pro život své rodiny, kde se potkává moderní architektura s velkorysým prostorem? Objevte projekt nízkoenergetického domu 6+kk v oblíbené lokalitě Těčovice u Zlína. Na slunném, rovinatém pozemku o rozloze 1 364 m² pro vás postavíme dům, který není jen stavbou, ale promyšleným domovem pro 21. století. Čím vás tento dům nadchne? Velkorysý prostor: Dispozice 6+kk s užitnou plochou 175 m² poskytne dostatek soukromí i pro velkou rodinu nebo domácí pracovnu. Chytrá úspora: Díky špičkovým materiálům (Porfix) a tepelnému čerpadlu jsou měsíční náklady až 3x nižší než v běžném bytě. Šetřete tam, kde to dává smysl. Bezstarostná realizace: Dům předáváme kompletně dokončený "na klíč" – včetně podlah, sanity, dveří a kolaudace. Stačí si vybrat kuchyni, svítidla a můžete bydlet. Zahrada snů: Šířka pozemku 24 metrů nabízí nekonečné možnosti pro bazén, terasu nebo dětské království. Lokalita, kterou si zamilujete Tečovice nabízejí veškerý komfort na dosah ruky. Do Zlína dorazíte za pouhých 15 minut, přesto si doma užijete naprostý klid. Mateřská a základní škola v docházkové vzdálenosti. Sportovní vyžití: bazén, fotbalové hřiště, dětská hřiště. Kompletní vybavenost: obchod, restaurace, pošta. Technické standardy & Možnosti Vytápění: Teplovodní podlahové topení a tepelné čerpadlo se zásobníkem na vodu. Flexibilita: Chcete krb, rekuperaci, fotovoltaiku nebo venkovní žaluzie? Žádný problém. Dispo

Mapa

Místa v okolí

Hodnocení

Celkové hodnocení
Pro snadnější hodnocení realit se prosím zaregistrujte.
*
*

Kalkulačka pojištění domácnosti

Kontakt makléře

*
*
*
*

Podobné reality