Prodej bytu 3+1 82 m2

Zpět
Zázvorkova, Praha 13
Přidat do oblíbených Nahlásit chybný nebo jinak obtěžující inzerát administrátorovi.

Přehled

Datum vložení
16. 2. 2026
Datum aktualizace
16. 2. 2026
Počet zobrazení
6
Cena
8 190 000 Kč
+popl. 5143
Typ nemovitosti:
Byt
Druh:
Prodej
ID:
655299
Adresa:
Zázvorkova
Praha 13
Praha
Vlastnictví:
Družstevní
Dispozice:
3+1
Vytápění:
Ústřední-dálkové
Stav:
Dobrý
Stavba:
Panelová
Zařízení:
Zařízeno
Plocha:
82 m2
Podlaží:
10
Energetická náročnost:
B
Vybavení:
Sklepní kóje
Výtah
Hodnocení:
Inspirace pro Váš byt
Facebook Twitter Google LinkedIn Pinterest Email

Popis

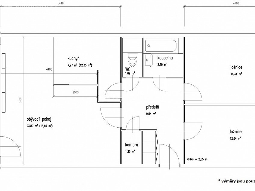
________________________________________ ???? Prodej bytu 3+1, 82,5 m², Praha 13 – Stodůlky, Zázvorkova 1997/26 Hledáte prostorný byt pro rodinu, ve skvělé lokalitě Prahy 13, s krásným výhledem, nízkými provozními náklady a okamžitou možností nastěhování? Právě jste ho našli. Nabízím k prodeji družstevní byt 3+1 o velikosti 82,5 m², který se nachází v 9. patře revitalizovaného panelového domu v žádané lokalitě Stodůlky – Praha 13. ________________________________________ ???? Dispozice a stav bytu Byt má velmi prakticky řešenou dispozici, ideální pro rodinu s dětmi: • prostorný obývací pokoj • dvě samostatné ložnice • kuchyně • koupelna ve velmi udržovaném stavu s původním jádrem • samostatné WC • komora přímo v bytě • zasklená lodžie • sklepní kóje Ložnice jsou orientované na severovýchod s otevřeným výhledem, společné prostory bytu pak do klidného vnitrobloku na jihozápad, díky čemuž je byt světlý, vzdušný a příjemný po celý den. Byt je ve velmi dobrém a udržovaném stavu, prošel částečnou rekonstrukcí: • původní bytové jádro • původní rozvody elektřiny • plastová okna se žaluziemi • podlahy: plovoucí PVC, linoleum a dlažba • velkorysé úložné prostory na chodbě ________________________________________ ???? Dům a provoz Panelový dům je po kompletní revitalizaci, což se pozitivně odráží na: • nízkých měsíčních nákladech • dobrém technickém stavu domu (FVE, vlastní kotelna s tepelnými čerpadly) • kultivovaném společném prostoru ________________________________________ ???? Lok

Mapa

Místa v okolí

Hodnocení

Celkové hodnocení
Pro snadnější hodnocení realit se prosím zaregistrujte.
*
*

Kalkulačka pojištění domácnosti

Kontakt makléře

*
*
*
*

Podobné reality