Prodej rodinného domu 110 m2

Zpět
Šeříková, Jesenice
Přidat do oblíbených Nahlásit chybný nebo jinak obtěžující inzerát administrátorovi.

Přehled

Datum vložení
8. 3. 2026
Datum aktualizace
30. 3. 2026
Počet zobrazení
4350
Cena
19 500 000 Kč
Typ nemovitosti:
Dům
Druh:
Prodej
ID:
32118
Adresa:
Šeříková
Jesenice
Praha
Typ:
Rodinný
Stav:
Dobrý
Stavba:
Cihlová
Dispozice:
4+kk
Obytná plocha:
110 m2
Zastavěná plocha:
69 m2
Počet NP:
2
Poloha domu:
Řadový
Energetická náročnost:
E
Hodnocení:
Inspirace pro Váš dům
Facebook Twitter Google LinkedIn Pinterest Email

Popis

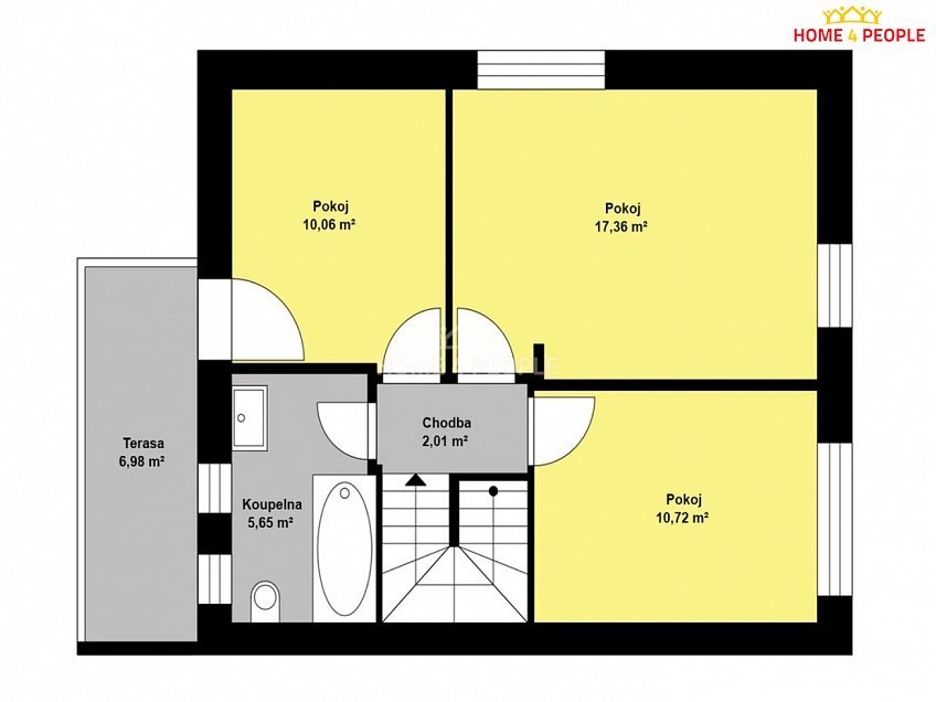
Exkluzivně nabízíme k prodeji řadový patrový dům 4+kk, 110 m² v Osnici, která leží asi 2 km na východ od samotné Jesenice v okrese Praha-západ ve Středočeském kraji. Dům se nachází ve slepé ulici. Stavba je z roku 2004, po částečné rekonstrukci. Dům je napojen na elektřinu, plyn, kanalizaci, obecní vodovod. Je vybaven klimatizací z roku 2024, alarmem, plynovým kotlem z roku 2019. Okna plastová. V přízemí je chodba, kde je samostatné WC a technická místnost se sprchovým koutem. Dále jsou zde vestavěné skříně. Obývací pokoj (36,50 m²) s kuchyní a jídelním ostrůvkem (6,76 m²) s technistonem z roku 2025 tvoří hlavní místnost domu. Kuchyně je zařízená kombinovanou troubou s mikrovlnkou značky Gorenje, plynovým sporákem Bosch, ledničkou Gorenje a vestavěnou vinotékou Philco. Na podlaze je dlažba s vytápěním. V 1.patře se nachází tři ložnice. Jedna z ložnic má balkon. Podlahy jsou dřevěné. Dále je zde koupelna s vanou a WC, na podlaze dlažba s vytápěním. Z chodby v tomto patře vedou skládací schůdky na půdu, která lze zateplit a je zde možnost výstavby dalšího pokoje. Zahrada o velikosti 300 m² nabízí soukromí i místo pro relaxaci u bazénu (5x3 m od firmy Albixon z roku 2024) a venkovní posezení na terase (20 m²). Parkování před domem pro 3 auta. Poplatky (elektřina, plyn, voda) jsou měsíčně cca 6.000,-Kč. Dům se nachází v klidné a žádané části Jesenice, s dobrým napojením na občanskou vybavenost, školy, dopravu a rychlý dojezd do Prahy. Autobusem je spojení do Prahy ze zast

Mapa

Místa v okolí

Hodnocení

Celkové hodnocení
Pro snadnější hodnocení realit se prosím zaregistrujte.
*
*

Kalkulačka pojištění domácnosti

Kontakt makléře

*
*
*
*

Podobné reality