Prodej rodinného domu 133 m2

Zpět
Zlonice
Přidat do oblíbených Nahlásit chybný nebo jinak obtěžující inzerát administrátorovi.

Přehled

Datum vložení
18. 4. 2026
Datum aktualizace
18. 4. 2026
Počet zobrazení
4
Cena
6 950 000 Kč
včetně právního servisu a provize RK
Typ nemovitosti:
Dům
Druh:
Prodej
ID:
32151
Adresa:
Zlonice
Praha
Typ:
Rodinný
Stav:
Před rekonstrukcí
Stavba:
Cihlová
Dispozice:
5 a více
Obytná plocha:
133 m2
Zastavěná plocha:
86 m2
Počet NP:
2
Poloha domu:
Samostatný
Energetická náročnost:
G nebo neuvedeno
Hodnocení:
Inspirace pro Váš dům
Facebook Twitter Google LinkedIn Pinterest Email

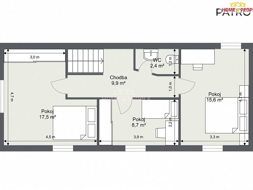
Popis

Zprostředkujeme Vám Zprostředkujeme Vám ve výhradním zastoupení majitele prodej rodinného domu v klidné obci Břešťany - Zlonice okres Kladno. Tento patrový zděný dům o dispozici 5+1 a celkové užitné ploše 133 m² je určen k rekonstrukci či možnost výstavby nového domu nebo i dvojdomu. V přízemí domu je prostorná kuchyň a obývací pokoj, koupelna a komora. V patře se nachází tři pokoje a wc. Dům je napojen na inženýrské sítě -elektřina, obecní vodovod, kanalizace. Díky rekonstrukci a změnou dispozice celého domu můžeme vytvořit novější, modernější dům dle přání a s tím Vám mohou pomoc naši architekti či stavební firma. Pro více informací neváhejte kontaktovat makléře. Vřele doporučuji prohlídku. Lokalita leží na okraji původní zástavby obce, příjemné bydlení ve zdravém prostředí, s dostatkem prostoru pro hobby, relaxaci a rodinné aktivity, které vhodné pro rodinu s aktivním životním stylem. Ideální místo pro pohodlné rodinné bydlení v klidu a pohodě. Na hranici Prahy jste za 30minut autem. 25 min autobusem do Slaného. Do Zlonic 9min, kde je občanská vybavenost. Pro více informací neváhejte kontaktovat makléře. Možné financovat hypotečním úvěrem bez dokládání příjmů, pouze složení 20% vlastních zdrojů, se kterým Vám rádi pomůžeme zdarma vyřídit za nejlepších podmínek na trhu. K dispozici dle dohody. Prohlídky dle telefonické domluvy. Těším se na naše společné setkání při prohlídce. Z důvodu, že před zadáním do inzerce nebyl vyhotoven PENB, je tato nemovitost v souladu s plat

Mapa

Místa v okolí

Hodnocení

Celkové hodnocení
Pro snadnější hodnocení realit se prosím zaregistrujte.
*
*

Kalkulačka pojištění nemovitosti

Kontakt makléře

*
*
*
*

Podobné reality