Prodej rodinného domu 209 m2

Zpět
Spojenců, Praha 20
Přidat do oblíbených Nahlásit chybný nebo jinak obtěžující inzerát administrátorovi.

Přehled

Datum vložení
18. 4. 2026
Datum aktualizace
18. 4. 2026
Počet zobrazení
4
Cena
16 999 999 Kč
Cena včetně provize a právního systému
Typ nemovitosti:
Dům
Druh:
Prodej
ID:
656575
Adresa:
Spojenců
Praha 20
Praha
Typ:
Rodinný
Stav:
Dobrý
Stavba:
Cihlová
Dispozice:
4+kk
Obytná plocha:
209 m2
Zastavěná plocha:
132 m2
Počet NP:
2
Poloha domu:
Samostatný
Energetická náročnost:
G nebo neuvedeno
Hodnocení:
Inspirace pro Váš dům
Facebook Twitter Google LinkedIn Pinterest Email

Popis

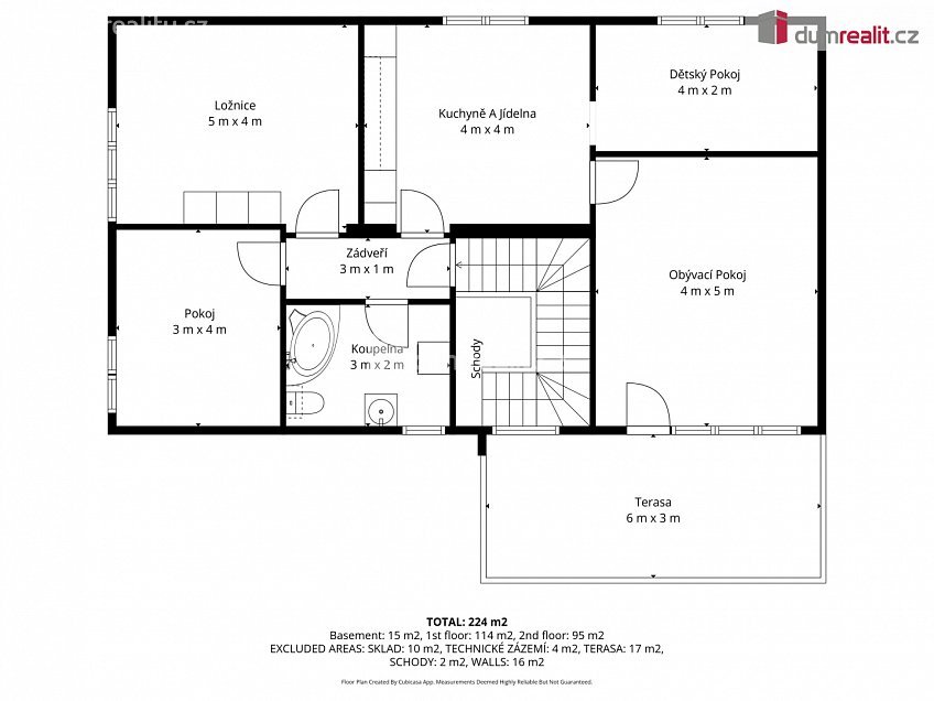
Prodej prostorného rodinného domu se dvěma byty (4+1 a 4+kk) v srdci Horních Počernic v ulici Spojenců Hledáte bydlení, které kombinuje klid předměstí s perfektní dostupností Prahy? Nabízíme vám exkluzivní příležitost ke koupi samostatně stojícího rodinného domu v prestižní části Prahy. Tento dům je díky své dispozici ideální jako vícegenerační bydlení, kombinace vlastního bydlení s podnikáním, nebo jako výhodná investice k pronájmu dvou samostatných jednotek. Klíčové parametry nemovitosti: Celková užitná plocha: cca 224 m² (včetně příslušenství). Dispozice: Dvě plnohodnotné bytové jednotky se samostatnými vstupy z centrálního schodiště. Garáž a parkování: Velkorysá garáž pro více vozů + možnost parkování na pozemku. Dispozice domu: 1. patro (114 m²) – Byt 4+1: Dominantou tohoto patra je prostorný obývací pokoj s krbem, který dodává interiéru útulnou atmosféru. Kuchyně s jídelním koutem je oddělena, což ocení milovníci klasického uspořádání. Patro dále nabízí tři ložnice/pokoje, koupelnu s vanou a samostatné WC. 2. patro (95 m²) – Byt 4+kk: Moderněji koncipované podlaží, kterému vévodí světlý obývací pokoj propojený s kuchyňským koutem a jídelnou. Z obývacího pokoje je přímý vstup na velkou terasu (17 m²) s výhledem do zeleně, ideální pro letní snídaně nebo večerní relaxaci. Nachází se zde další tři samostatné neprůchozí pokoje a stylová koupelna s rohovou vířivou vanou. Technické zázemí (Suterén/Přízemí): Dům je částečně podsklepen a nabízí bohaté úložné prostory – sklad

Mapa

Místa v okolí

Hodnocení

Celkové hodnocení
Pro snadnější hodnocení realit se prosím zaregistrujte.
*
*

Kalkulačka pojištění domácnosti

Kontakt makléře

*
*
*
*

Podobné reality