Prodej rodinného domu 170 m2

Zpět
Petrohrad
Přidat do oblíbených Nahlásit chybný nebo jinak obtěžující inzerát administrátorovi.

Přehled

Datum vložení
21. 4. 2026
Datum aktualizace
21. 4. 2026
Počet zobrazení
6
Cena
5 780 000 Kč
Typ nemovitosti:
Dům
Druh:
Prodej
ID:
656605
Adresa:
Petrohrad
Praha
Typ:
Rodinný
Stav:
Před rekonstrukcí
Stavba:
Cihlová
Dispozice:
Atypický
Obytná plocha:
170 m2
Zastavěná plocha:
106 m2
Počet NP:
2
Poloha domu:
Samostatný
Energetická náročnost:
G nebo neuvedeno
Hodnocení:
Inspirace pro Váš dům
Facebook Twitter Google LinkedIn Pinterest Email

Popis

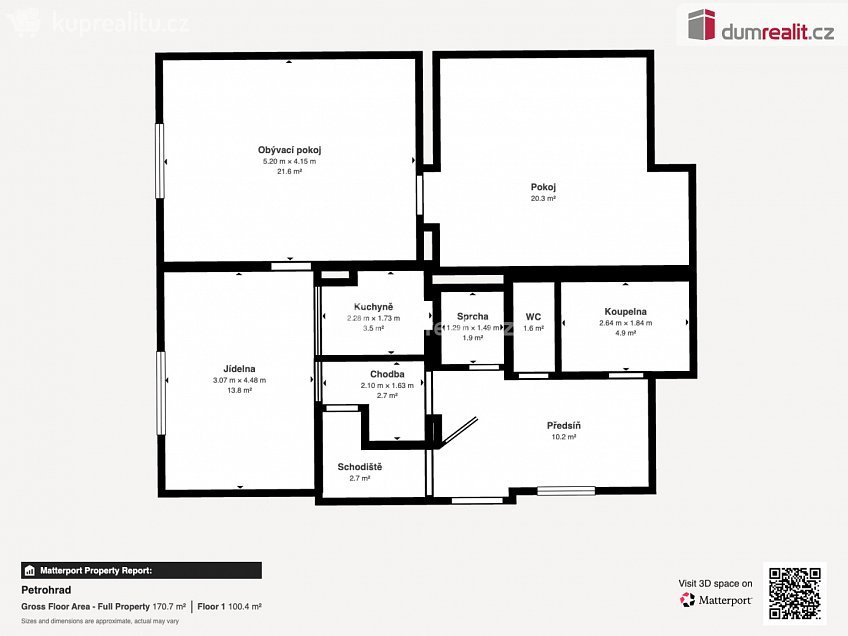
Exkluzivní prodej rodinného domu v obci Petrohrad, okres Louny. Dům disponuje celkem 5 obytnými místnostmi rozloženými do dvou podlaží, přičemž přízemí tvoří obytná část s obývacím pokojem, jídelnou, kuchyní, dalším samostatným pokojem a kompletním sociálním zázemím. V patře se nachází dva pokoje, přičemž jeden z pokojů má vstup na balkón s výhledem do zahrady a dále samostatná šatna. Technický stav domu je průběžně udržovaný, v roce 2012 proběhla výměna střešní krytiny. Vytápění je řešeno kotlem na tuhá paliva, doplněným krbovými kamny v obývacím prostoru. Ohřev vody zajišťuje elektrický bojler. Nemovitost je napojena na obecní kanalizaci. Dům je částečně podsklepený, poskytuje tak praktické skladovací a technické zázemí. Součástí nemovitosti je také samostatně stojící vedlejší hospodářská budova se širokými možnostmi využití. V přízemí se nachází garáž, dílna, dvě hospodářské místnosti a vstup do sklepa. V patře je prostorná pochozí půda rozdělená na dvě části. K domu náleží udržovaná zahrada se vzrostlými stromy, poskytuje tak prostor pro relaxaci, zahradničení i rodinné využití. Tato nemovitost nabízí kombinaci komfortního bydlení a zázemí s potenciálem pro podnikání, hospodaření i vícegenerační využití. Pro více informací, či sjednání prohlídky kontaktujte makléře nabídky. Ev. číslo: 655991.

Mapa

Místa v okolí

Hodnocení

Celkové hodnocení
Pro snadnější hodnocení realit se prosím zaregistrujte.
*
*

Kalkulačka pojištění nemovitosti

Kontakt makléře

*
*
*
*

Podobné reality