Prodej domu na klíč 117 m2

Zpět
Mlýnská, Luhačovice
Přidat do oblíbených Nahlásit chybný nebo jinak obtěžující inzerát administrátorovi.

Přehled

Datum vložení
28. 4. 2026
Datum aktualizace
28. 4. 2026
Počet zobrazení
8
Cena
0 Kč
Cena včetně projektu, stavebního povolení, výstavby domu, pozemku, IS a kolaudace.
Typ nemovitosti:
Dům
Druh:
Prodej
ID:
654560
Adresa:
Mlýnská
Luhačovice
Praha
Typ:
Na klíč
Stav:
Výstavba
Stavba:
Cihlová
Dispozice:
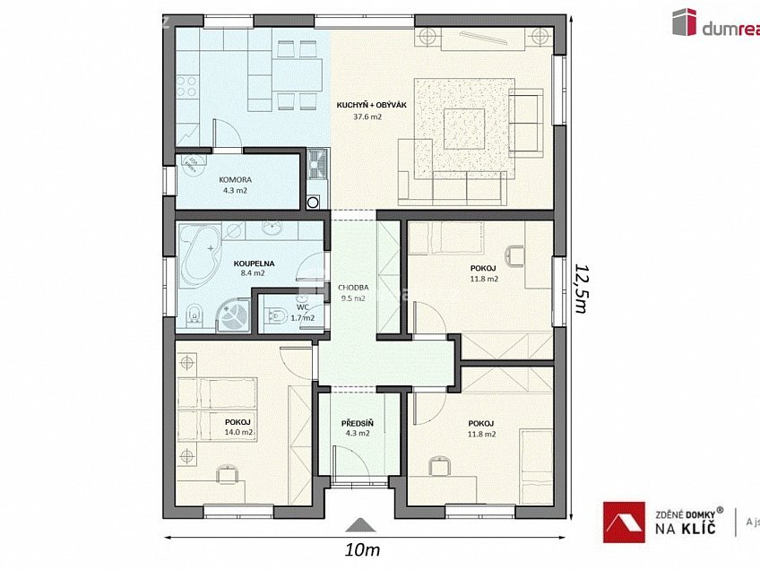
4+kk
Obytná plocha:
117 m2
Zastavěná plocha:
117 m2
Počet NP:
1
Poloha domu:
Samostatný
Energetická náročnost:
A
Hodnocení:
Inspirace pro Váš dům
Facebook Twitter Google LinkedIn Pinterest Email

Popis

Naše společnost Vám zprostředkuje výstavbu novostavby domu 4+kk se zahradou a parkovacím místem přímo v srdci Luhačovic. Představujeme vám jedinečnou příležitost vlastnit moderní a flexibilní přízemní rodinný dům na klíč, situovaný v samém centru prestižních Luhačovic. Tato luxusní novostavba splňuje ty nejvyšší nároky na komfortní bydlení a zároveň otevírá neomezené možnosti pro investici a podnikání. Bydlení, kde se potkává luxus s flexibilitou Nepřekonatelná poloha: Bydlete v pěší dostupnosti lázeňské kolonády, kaváren a veškeré občanské vybavenosti. Život v centru Luhačovic nikdy nebyl pohodlnější. Prostornost a design: Dům o dispozici 4+kk s promyšleným uspořádáním poskytuje dostatek soukromí a prostoru pro velkou rodinu. Váš soukromý relax: Vychutnejte si ranní kávu nebo večerní posezení na prostorné terase s výhledem do privátní zahrady, která tvoří klidnou oázu uprostřed města. Nenechte si ujít tuto exkluzivní šanci vlastnit multifunkční luxusní rodinnou vilu v jedné z nejvyhledávanějších lázeňských lokalit v Česku. Ať už hledáte ideální rodinné sídlo, nebo chytrou investiční příležitost, tento dům je připraven splnit vaše sny. Stavbu můžeme zahájit do 14 dnů od podpisu smlouvy. Stavební povolení je vydáno, takže zde není žádné zdržení s jeho vyřízením. Pro kompletní specifikace, vizualizace a sjednání osobní schůzky nás neváhejte kontaktovat. Ev. číslo: 653946.

Mapa

Místa v okolí

Hodnocení

Celkové hodnocení
Pro snadnější hodnocení realit se prosím zaregistrujte.
*
*

Kalkulačka pojištění domácnosti

Kontakt makléře

*
*
*
*

Podobné reality