Pronájem kanceláře 51 m2

Zpět
Bubenečská, Praha 6
Přidat do oblíbených Nahlásit chybný nebo jinak obtěžující inzerát administrátorovi.

Přehled

Datum vložení
29. 4. 2026
Datum aktualizace
29. 4. 2026
Počet zobrazení
4
Cena
24 900 Kč za měsíc
+ DPH + elektrická energie + služby
Typ nemovitosti:
Komerční
Druh:
Pronájem
ID:
656716
Adresa:
Bubenečská
Praha 6
Praha
Typ:
Kanceláře
Stav:
Dobrý
Stavba:
Cihlová
Plocha:
51 m2
Energetická náročnost:
G nebo neuvedeno
Hodnocení:
Facebook Twitter Google LinkedIn Pinterest Email

Popis

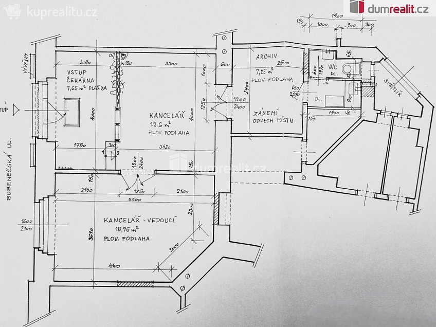
Pronájem reprezentativních kancelářských prostor, 51m², na P6 Bubeneč, v ulici Bubenečská. Kompletně vybavené kancelářské prostory se vstupem z ulice se nachází v pěší dostupnosti na metro "A" Hradčanská, bus a tram síť v atraktivní lokalitě. Vstupní prostor z Bubenečské ulice ideální jako čekárna, opticky oddělen od hlavní, "otevřené" kanceláře, se vstupem do druhé kanceláře, nebo zázemí s kuchyňskou a toaletou. Vybavení kanceláří je součástí nájmu. Dvě venkovní vývěsky. Prostor je k dispozici ihned. Žádaná a vyhledávaná lokalita s nadstandardní občanskou vybaveností a skvělou dopravní dostupností. Doporučuji prohlídku! Ev. číslo: 656102.

Mapa

Místa v okolí

Hodnocení

Celkové hodnocení
Pro snadnější hodnocení realit se prosím zaregistrujte.
*
*

Kalkulačka pojištění domácnosti

Kontakt makléře

*
*
*
*

Podobné reality