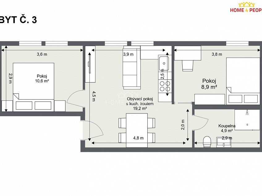
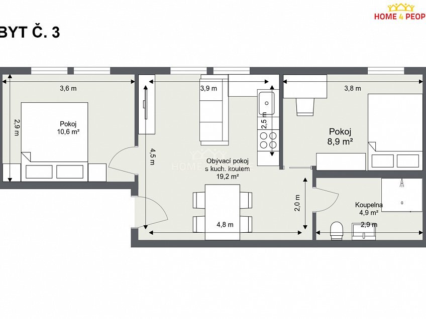
Pronájem bytu 3+kk 44 m2

Zpět
Chrášťany
Přidat do oblíbených Nahlásit chybný nebo jinak obtěžující inzerát administrátorovi.

Přehled

Datum vložení
26. 12. 2025
Datum aktualizace
26. 12. 2025
Počet zobrazení
3
Cena
15 000 Kč za měsíc
poplatky 5.000,-Kč (elektřina, voda, popelnice) pro dvě osoby, provize RK, kauce
Typ nemovitosti:
Byt
Druh:
Pronájem
ID:
31944
Adresa:
Chrášťany
Praha
Vlastnictví:
Osobní
Dispozice:
3+kk
Stav:
Dobrý
Stavba:
Cihlová
Plocha:
44 m2
Podlaží:
2
Energetická náročnost:
F
Hodnocení:
Inspirace pro Váš byt
Facebook Twitter Google LinkedIn Pinterest Email

Popis

Ve výhradním zastoupení majitele pronájem bytu 3+kk, 44m² v obci Bylany u Českého Brodu s malou zahrádkou v přízemí domu, která bude společná pro všechny bytové jednotky v domě. Bytová jednotka momentálně prošla kompletní rekonstrukcí. Úplně nová kuchyňská linka včetně myčky. Jinak je byt bez vybavení. V koupelně najdete sprchový kout, umyvadlo a wc. Hledáte klid v dojezdové vzdálenosti do Prahy, Českého Brodu či Kolína? Neváhejte mě kontaktovat pro více informací nebo prohlídku. Byt je volný od 15.10.2025 nebo dle dohody. Pronajímatel si vyhrazuje právo vybrat zájemce na základě jím zvolených kritérií. Ev. číslo: 31944.

Mapa

Místa v okolí

Hodnocení

Celkové hodnocení
Pro snadnější hodnocení realit se prosím zaregistrujte.
*
*

Kalkulačka pojištění nemovitosti

Kontakt makléře

*
*
*
*

Podobné reality