Pronájem bytu 3+kk 62 m2

Zpět
Křižíkova, Benešov
Přidat do oblíbených Nahlásit chybný nebo jinak obtěžující inzerát administrátorovi.

Přehled

Datum vložení
7. 1. 2026
Datum aktualizace
7. 1. 2026
Počet zobrazení
14
Cena
15 000 Kč za měsíc
+popl. 4213, cena měsíčního pronájmu nezahrnuje poplatky za užívání bytu (vodné, teplo, energie)
Typ nemovitosti:
Byt
Druh:
Pronájem
ID:
650889
Adresa:
Křižíkova
Benešov
Praha
Vlastnictví:
Osobní
Dispozice:
3+kk
Vytápění:
Ústřední-dálkové
Stav:
Dobrý
Stavba:
Cihlová
Plocha:
62 m2
Podlaží:
2
Energetická náročnost:
E
Vybavení:
Sklepní kóje
Balkon
Hodnocení:
Inspirace pro Váš byt
Facebook Twitter Google LinkedIn Pinterest Email

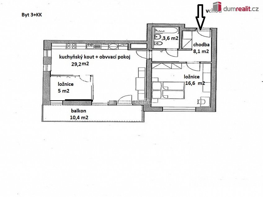
Popis

Naše společnost Vám zprostředkuje pronájem bytu 3 + KK, 62 m² +10 m² balkón, v ul. Křižíkova, v Benešově. Bytová jednotka se nachází v cihlovém domě z r. 20210, v 2.NP. Dispozice: ze vstupní chodby je samostatný vstup do ložnice s vestavěnou skříní, koupelny osazené vanou, umyvadlem a WC, dále do obývacího pokoje s kuchyňským koutem se spotřebiči (el. varná deska, el. trouba, digestoř). Z této centrální části bytu je vstup do maličké ložnice a na balkón. Součástí pronájmu je koje (cca 2 m²) a nekryté parkovací stání pro jeden automobil před domem. Měsíční nájemné činí15.000 Kč + 4.213 Kč poplatky. Zálohy na spotřebu elektrické energie si nájemce převede u dodavatele na sebe. Vratná kauce činí 30.000 Kč. Při podpisu nájemní smlouvy je třeba uhradit odměnu RK ve výši jednoho nájemného. Byt bude připravený k pronájmu od 2/2026. Lokalita je klidná, v okolí bytové domy, 10 min. pěší chůze na nádraží BUS, vlak. Benešov poskytuje plnou občanskou vybavenost. Pro více informací, volejte na uvedené telefonní číslo. Ráda Vám byt osobně představím. Ev. číslo: 650275.

Mapa

Místa v okolí

Hodnocení

Celkové hodnocení
Pro snadnější hodnocení realit se prosím zaregistrujte.
*
*

Kalkulačka pojištění nemovitosti

Kontakt makléře

*
*
*
*

Podobné reality