Prodej domu na klíč 121 m2

Zpět
Rudice
Přidat do oblíbených Nahlásit chybný nebo jinak obtěžující inzerát administrátorovi.

Přehled

Datum vložení
15. 3. 2026
Datum aktualizace
15. 3. 2026
Počet zobrazení
7
Cena
8 211 000 Kč
Cena včetně domu na klíč, pozemku, připojení na IS a DPH.
Typ nemovitosti:
Dům
Druh:
Prodej
ID:
655639
Adresa:
Rudice
Praha
Typ:
Na klíč
Stav:
Výstavba
Stavba:
Cihlová
Dispozice:
4+kk
Obytná plocha:
121 m2
Zastavěná plocha:
81 m2
Počet NP:
2
Poloha domu:
Samostatný
Energetická náročnost:
A
Hodnocení:
Inspirace pro Váš dům
Facebook Twitter Google LinkedIn Pinterest Email

Popis

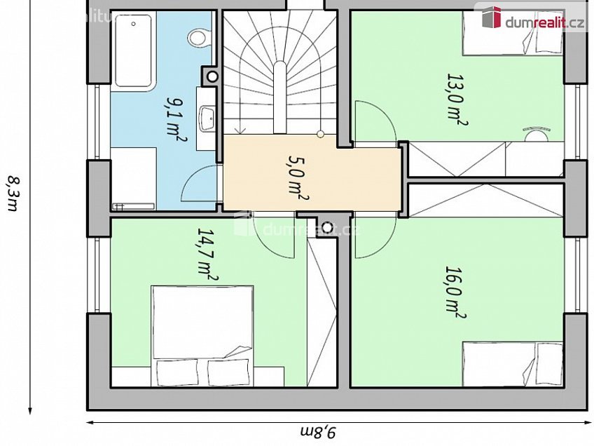
Naše společnost Vám zprostředkuje k prodeji výstavbu rodinného domu na klíč 4+kk o celkové podlahové ploše 121 m² v obci Rudice, okres Uherské Hradiště, se zahradou s ovocnými stromy o celkové výměře 1250m². Základní informace: - Lokalita: Rudice, okres Uherské Hradiště - Typ domu: samostatný, patrový - Konstrukce: cihlová - Dispozice: 4+kk / 5+kk - Užitná plocha: 121 m² - Zastavěná plocha: 81 m² - Plocha pozemku: 1 250 m² - Počet bytů v domě: 1 - Stav objektu: nový, dům předán “na klíč” Vybavení a technické parametry: - Vytápění: Nízkonákladové teplovodní podlahové topení, tepelné čerpadlo se zásobníkem na teplou vodu 180l. - Napojení na vodovod - Elektřina: 230 V / 400 V - Plyn: přípojka na hranici pozemku - Odpad: ČOV (čistírna odpadních vod) pro celý objekt Přednosti nabídky: - Moderní, energeticky úsporná novostavba - Velký, soukromý pozemek 1 250 m² poskytující možnost rozšíření zahradních úprav nebo volnočasových aktivit - Klidná lokalita s dobrou dostupností do Uherského Brodu či Bojkovic - Kompletní technické napojení (voda, elektřina 230/400 V, ČOV), plyn dostupný na hranici pozemku Díky svému kompaktnímu tvaru dosahuje projekt patrového rodinného domu Benefit125 výraznou energetickou a výstavbovou úsporu. Z boční strany lze jednoduchým způsobem přistavět garáž, nebo přístřešek . Také lze upravit rozložení oken a ostatních stavebních otvorů . Projekt je dostupný také v 5 + kk alternativě a také v alternativě. Dům moderního vzhledu je typ rodinného

Mapa

Místa v okolí

Hodnocení

Celkové hodnocení
Pro snadnější hodnocení realit se prosím zaregistrujte.
*
*

Kalkulačka pojištění domácnosti

Kontakt makléře

*
*
*
*

Podobné reality